Szolgáltatásainkat segítik a cookie fájlok. Szolgáltatásaink igénybevételével egyetért használatukkal.
Több információ
Ok
Kezdőlap
Munkáink
Szolgáltatások
Jó tudni
Rólunk
Kapcsolat
Kezdőlap
››
Munkáink
››
Társasházak II.
››
Szövőgyár utca
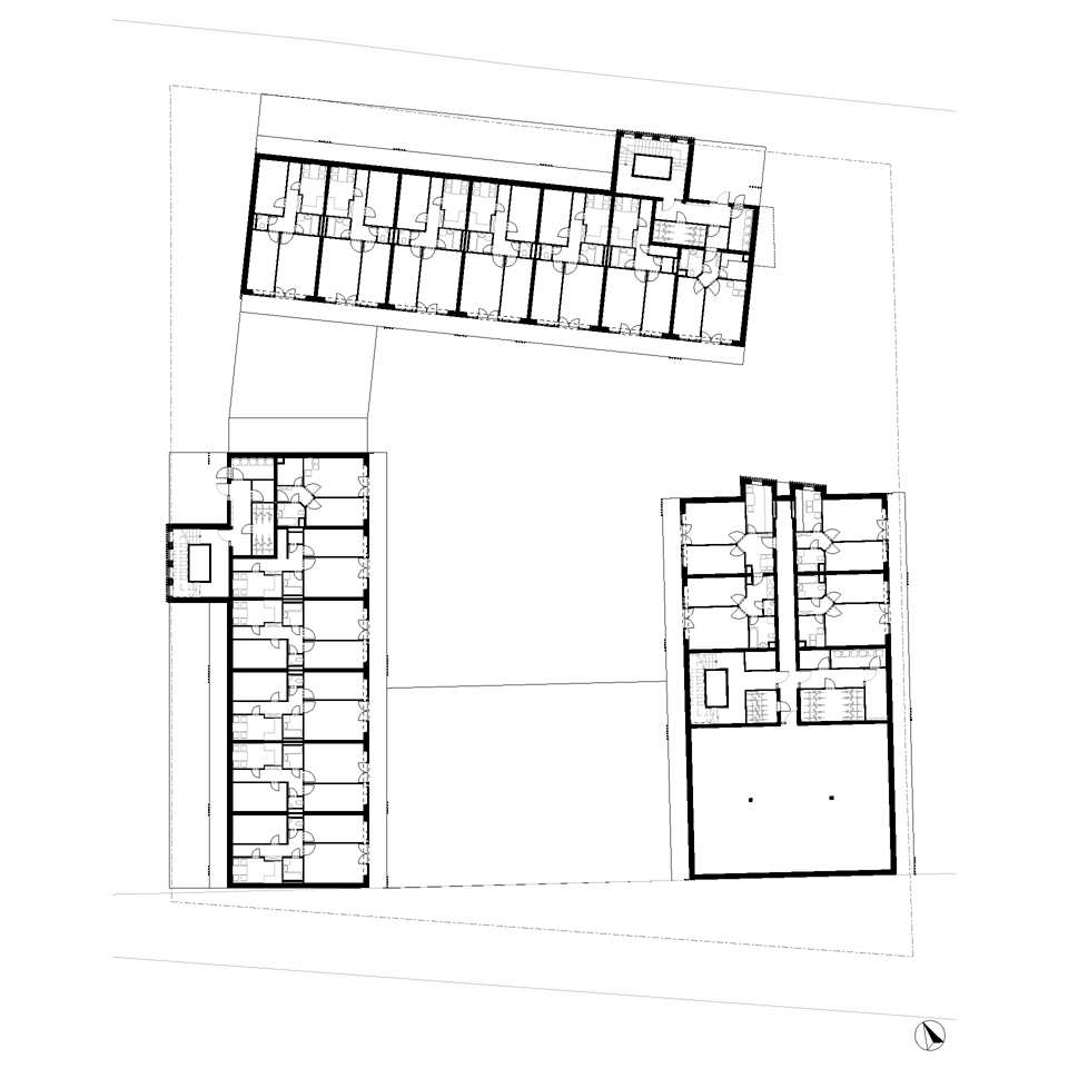
Szövőgyár utcai társasház
BUDAPEST - XV. kerület
TÁRSASHÁZ
Építészeti tervezés
Tervezés éve: 2021
Készültségi fok: Vázlatterv
Épületszintek: Pince + Földszint + 2 szint
Falazat anyaga: égetett kerámia + vasbeton
Telek lejtésviszonyai: sík terep
Elkészített tervek: Vázlatterv
Kategória:
Társasházak 2010-től
Kapcsolatfelvétel a tervezővel
Rövid leírás:
Rákospalota kertvárosi részére terveztük ezt a nagy zöldfelületekkel rendelkező társasházat.
Rólunk
Kapcsolat
YouTube
Kapcsolatfelvétel