látogató számláló
Szolgáltatásainkat segítik a cookie fájlok. Szolgáltatásaink igénybevételével egyetért használatukkal. Több információ

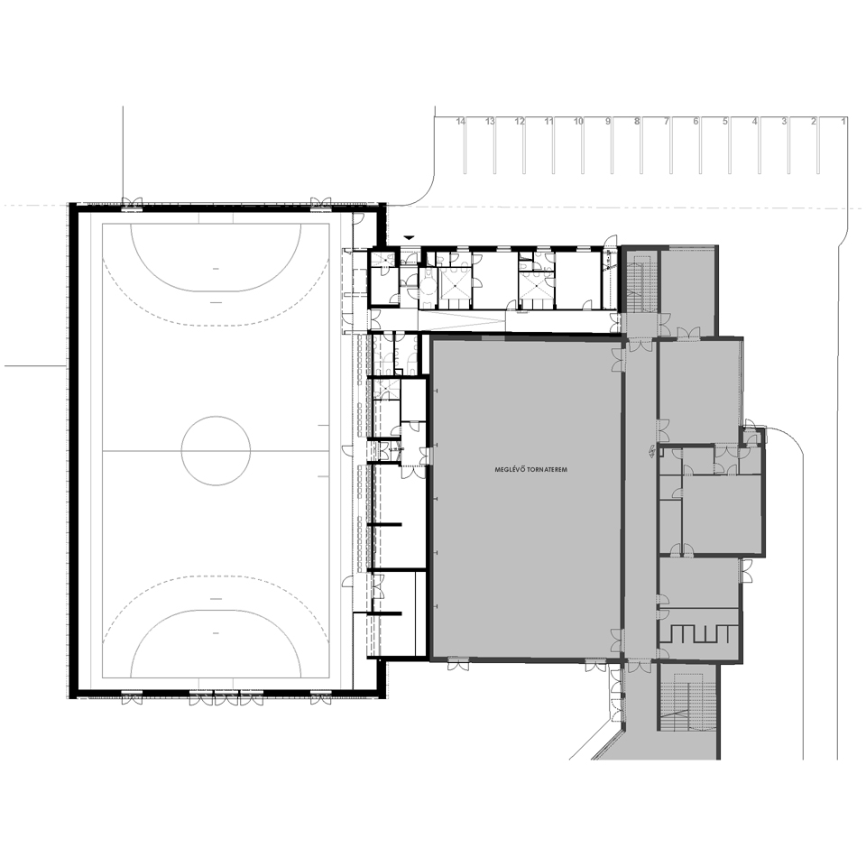
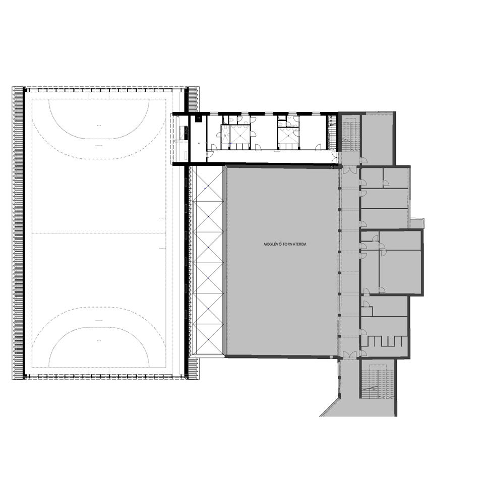
Iskolai Sportcsarnok

BUDAPEST - IV. kerület

ISKOLAI SPORTCSARNOK

Építészeti tervezés


Tervezés éve: 2019
Készültségi fok: Tervezés lezárult, nem épült meg
Épületszintek: Földszint + 1 szint
Falazat anyaga: acél héjszerkezet + vasbeton
Telek lejtésviszonyai: sík terep
Elkészített tervek: Engedélyezési terv, Kiviteli terv
 

Kapcsolatfelvétel