látogató számláló
Szolgáltatásainkat segítik a cookie fájlok. Szolgáltatásaink igénybevételével egyetért használatukkal. Több információ

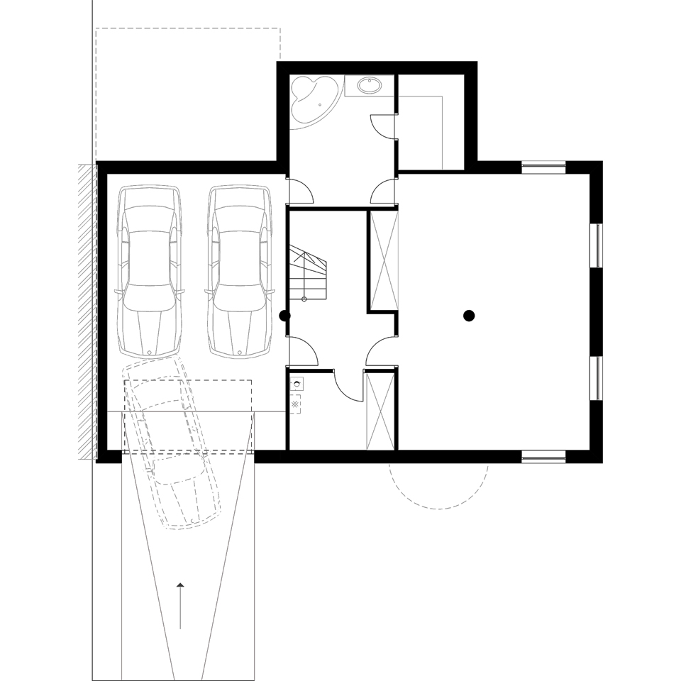
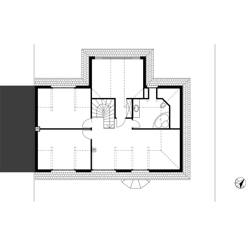
Családi ház a XIV. kerületben

BUDAPEST - XIV. kerület

CSALÁDI HÁZ

Építészeti tervezés, látványterv


Tervezés éve: 2004
Készültségi fok: Elkészült
Épületszintek: Pince + földszint + tetőtér
Falazat anyaga: égetett kerámia
Telek lejtésviszonyai: sík terep
Elkészített tervek: Engedélyezési terv, látványtervek

Rövid leírás:

A kerület ezen családi házas övezetét „Lovagi telkek”-nek nevezik. A tervezett épület elhelyezésére, méreteire, formai részleteire szigorú előírások vonatkoztak, amihez tartani kellett magunkat a ház tervezése során.


Animáció az épületről:

Kapcsolatfelvétel