Szolgáltatásainkat segítik a cookie fájlok. Szolgáltatásaink igénybevételével egyetért használatukkal.
Több információ
Ok
Kezdőlap
Munkáink
Szolgáltatások
Jó tudni
Rólunk
Kapcsolat
Kezdőlap
››
Munkáink
››
Sportlétesítmények, csarnokok
››
Lovarda
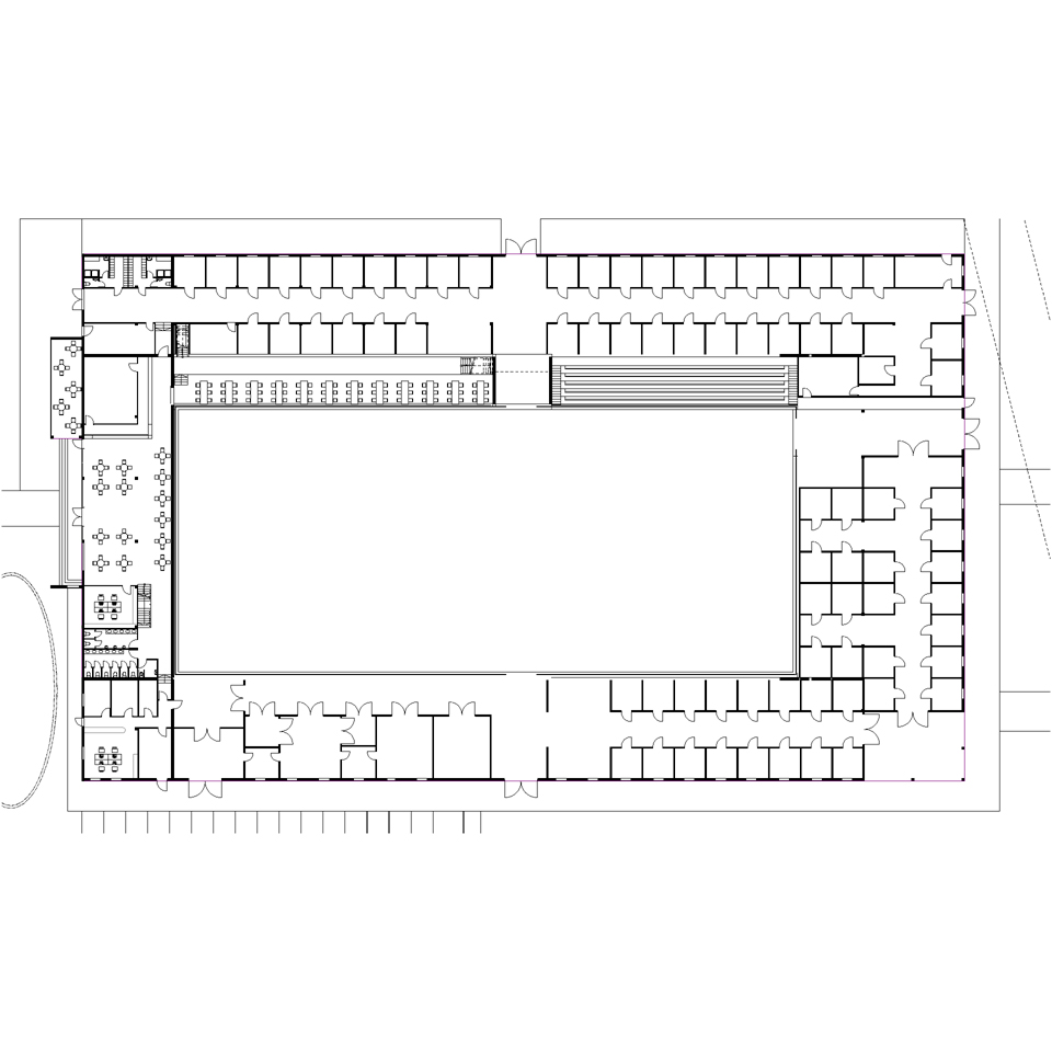
Lovarda
SZIGETSZENTMIKLÓS
LOVARDA
Vázlatterv
Tervezés éve: 2015
Készültségi fok: Vázlatterv, nem épült meg
Épületszintek: Földszint + 1 szint
Falazat anyaga: -
Telek lejtésviszonyai: sík terep
Elkészített tervek: Vázlatterv, Látványterv
Kategória:
Sportlétesítmények, csarnokok
Kapcsolatfelvétel a tervezővel
Rólunk
Kapcsolat
YouTube
Kapcsolatfelvétel