Szolgáltatásainkat segítik a cookie fájlok. Szolgáltatásaink igénybevételével egyetért használatukkal.
Több információ
Ok
Kezdőlap
Munkáink
Szolgáltatások
Jó tudni
Rólunk
Kapcsolat
Kezdőlap
››
Munkáink
››
Sportlétesítmények, csarnokok
››
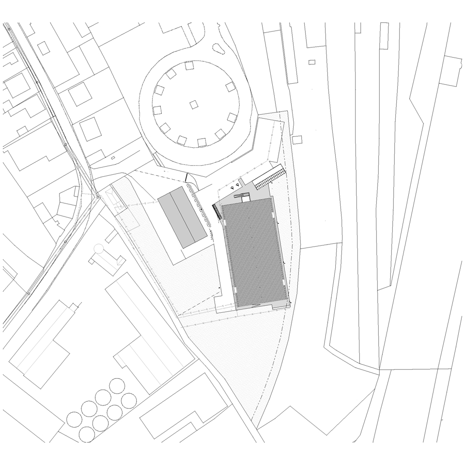
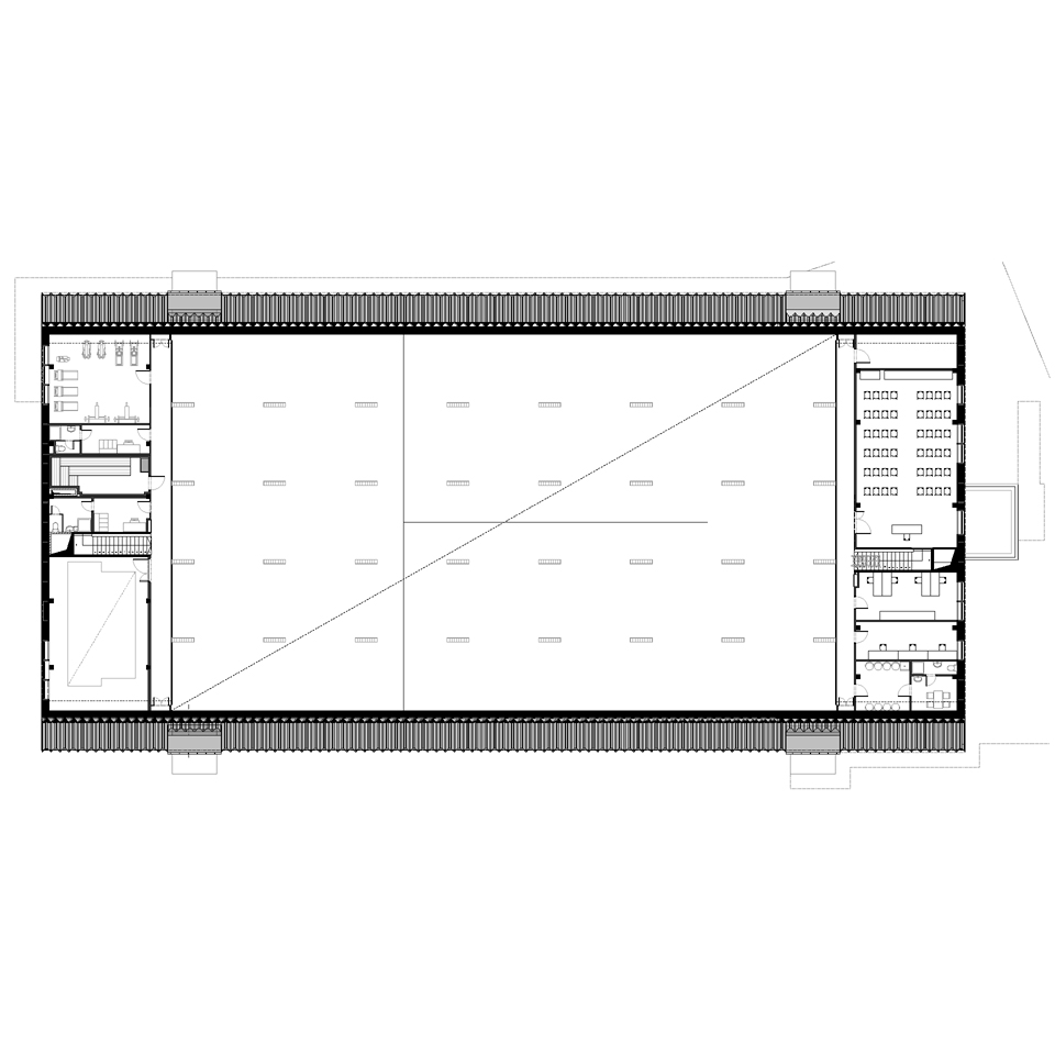
Dunaföldvári Sportcsarnok
Sportcsarnok
DUNAFÖLDVÁR
SPORTCSARNOK
Építészeti tervezés
Tervezés éve: 2021
Készültségi fok: Elkészült
Épületszintek: Földszint
Falazat anyaga: acél héjszerkezet + vasbeton
Telek lejtésviszonyai: sík terep
Elkészített tervek: Engedélyezési terv, Kiviteli terv
Kategória:
Sportlétesítmények, csarnokok
Kapcsolatfelvétel a tervezővel
Rólunk
Kapcsolat
YouTube
Kapcsolatfelvétel