látogató számláló
Szolgáltatásainkat segítik a cookie fájlok. Szolgáltatásaink igénybevételével egyetért használatukkal. Több információ

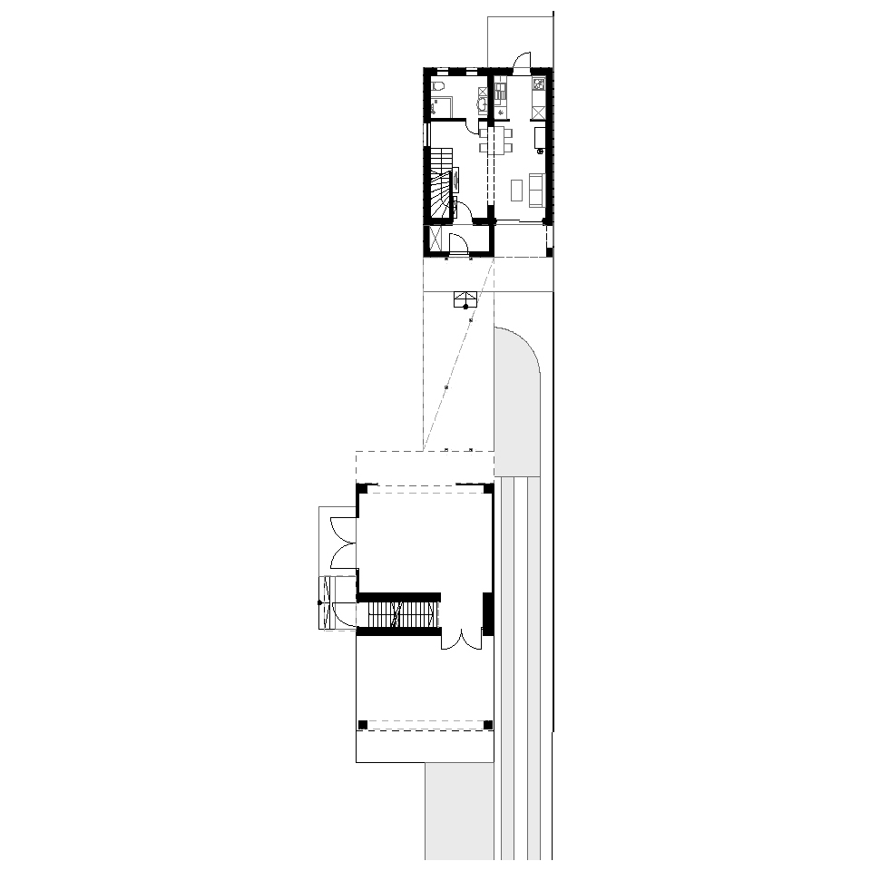
Üdülő

TAHITÓTFALU

ÜDÜLŐ

Építészeti tervezés (átépítés/bővítés)


Tervezés éve: 2021
Készültségi fok: Tervezés lezárult, nem épült meg
Épületszintek: Földszint + 1 szint
Falazat anyaga: égetett kerámia + vasbeton
Telek lejtésviszonyai: sík terep
Elkészített tervek: Engedélyezési terv, Látványterv
 

Kapcsolatfelvétel